Parceria com a Prefeitura desenvolve casas modelo com foco humano





Nesta semana, estudantes do 8º período do curso de Arquitetura e Urbanismo da Unochapecó apresentaram à Secretaria de Regularização Fundiária de Chapecó projetos humanizados e maquetes físicas de casas modelo, em uma ação conjunta com a Prefeitura Municipal.
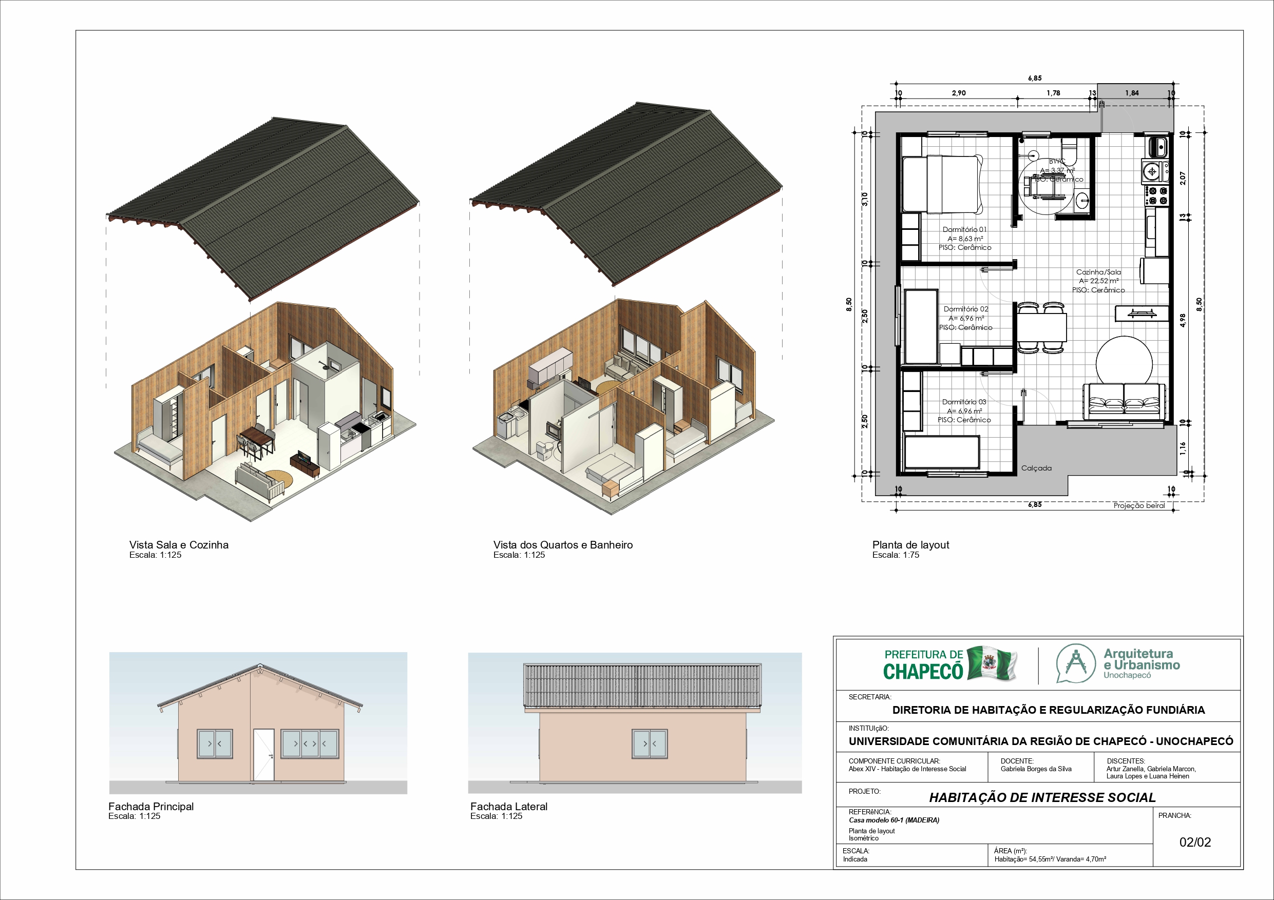
Chapecó/SC, 19 de dezembro de 2025 - Os trabalhos foram desenvolvidos no componente ABEx XIV – Habitação de Interesse Social e tiveram como ponto de partida as bases técnicas das casas modelo fornecidas pela Prefeitura. A partir dessas diretrizes, os acadêmicos da UNO ficaram responsáveis por elaborar representações gráficas acessíveis, com o objetivo de facilitar a compreensão dos projetos por parte dos moradores.
As propostas contemplam diferentes modelos habitacionais, traduzindo aspectos técnicos — como layout, dimensões e uso dos espaços — em linguagem visual clara, o que contribui para ampliar a autonomia, a participação e a segurança das famílias no processo de escolha da moradia.
Para a professora Gabriela Borges da Silva, a iniciativa evidencia a importância da atuação integrada entre universidade e poder público. “Ao trabalhar a partir dos projetos-base da Prefeitura, os estudantes conseguem transformar informações técnicas em materiais compreensíveis, fortalecendo a participação do morador e o direito à moradia digna”, destaca.
A ação reforça o papel da Unochapecó como universidade comunitária, comprometida com a formação acadêmica aliada à responsabilidade social e à construção de soluções técnicas e humanas para as políticas públicas de habitação e regularização fundiária.
SAIBA MAIS | Dados técnicos dos projetos
As casas modelo seguem diretrizes definidas pela Prefeitura de Chapecó e foram apresentadas pelos estudantes por meio de projetos humanizados e maquetes físicas:
Os materiais apresentados contribuem para uma comunicação mais clara dos projetos habitacionais, fortalecendo a transparência e a participação dos moradores.
===
Texto: Edu Vial / Unochapecó
Fotos: Arquitetura e Urbanismo / Unochapecó
Compartilhe
ARQUITETURA E URBANISMO
SERVIÇOS
Nosso portal utiliza cookies necessários para o seu funcionamento e que permitem coletar dados anonimizados de navegação para que possamos medir e melhorar o desempenho do nosso website, além de observar hábitos de visita, que permitem lembrar suas preferências. Os cookies podem ser estabelecidos por nós ou por fonecedores externos cujos serviços adicionamos às nossas páginas. Além dos cookies, estão habilitados plugins de determinadas redes sociais que poderão tratar seus dados quando você optar por acessar o nosso site por meio delas.